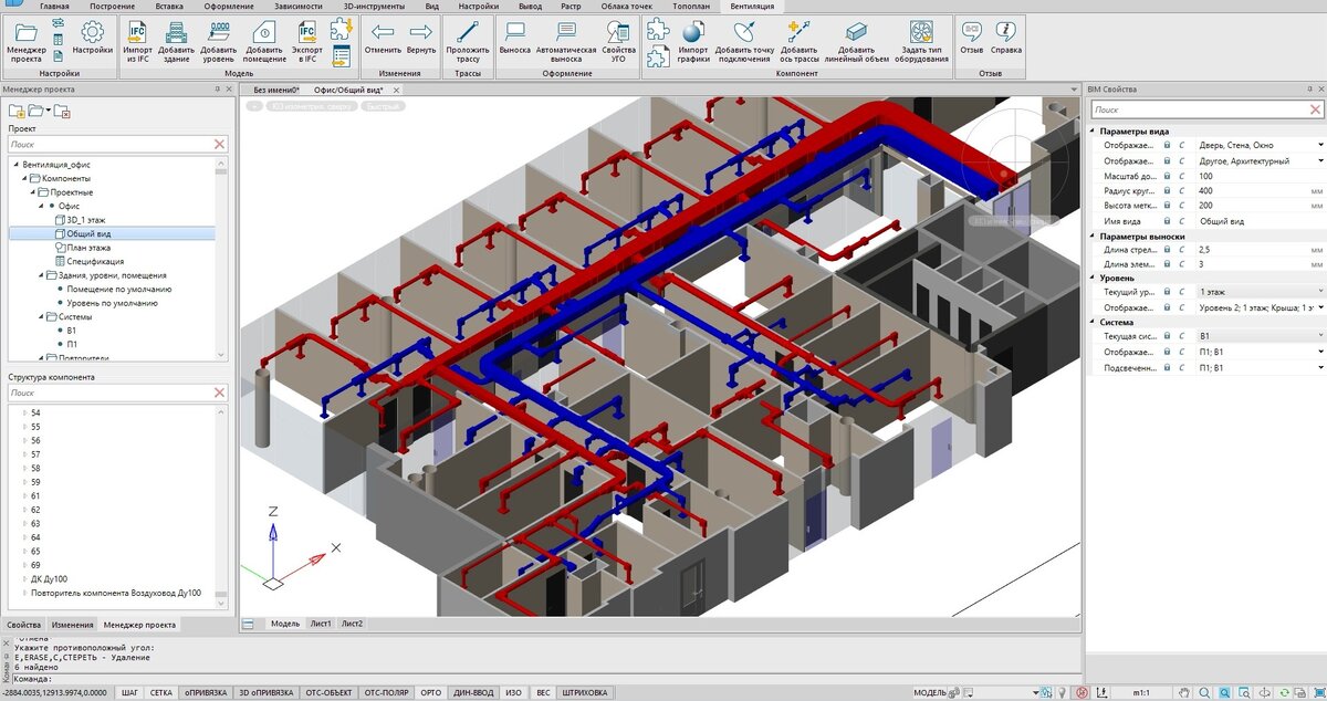
Скачать торрент чертежи вентиляция в nanocad - смотри 60 фото
Найдено фото: 60
Смотрите также
- Дворец молодежи большой зал фото екатеринбург
- Дерево адамово яблоко фото и описание
- Как выглядят алмазы в природе фото
- Камнеломка фото цветов описание
- Клематис белый жгучий фото и описание
- Лисий эффект наращивания классика фото
- Прическа для женщины лет
- Приложения на ноутбук для редактирования фото
- Распиновка подрулевого
- Рено сабвей фото
- Как выглядят растущие волосы
- Виды строительных блоков фото
- Как выглядит флаг цыган
- Как поменять лягушку на весте ng
- Где находится реле стартера фольксваген б5
- Где стоят предохранители на ваз 2111
- Фаршированный перец пошагово фото
- Структурная схема технологического процесса
- Лифановский проект ковчег 1 читать онлайн
- Нужно ли нумеровать титульный лист в проекте
